三綜合試驗箱需要滿足的標準和驗收依據
作者:zoey編輯:瑞凱儀器來源:www.riukai.cn發布時間:2020-09-21 09:09:00
三綜合試驗箱主要功能
1、三綜合試驗箱模擬GB/T10586- 2006濕熱試驗箱技術條件、GB/T10589- -2008低溫試驗箱等技術條件; GB/T11158- -2008高溫試驗箱技術條件制造,主要為航天、航空、石油、化工、軍事、汽車(摩托車)、船舶、電子、通訊等科研及生產單位提供溫濕度變化環境,模擬試品在溫濕度變化環境條件下加載模擬振動的適應性試驗及對電子元器件的安全性測試提供可靠性試驗、產品篩選等。
三綜合試驗箱適用于對產品(整機)、零部件、材料進行高溫、低溫、高低溫循環試驗,以及恒定濕熱和交變濕熱試驗。
2、振動與沖擊
所有設備及其部件應能承受使用時的沖擊和振動而無損壞和失效;所有設備及其部件應能承受運輸與安裝時的沖擊和振動而無損壞和失效。
3、可靠性要求
橡膠件(密封墊、密封條)能在本試驗箱極限溫度長時間工作條件下保持物理性能;冷卻系統管路焊接、密封可靠,不產生漏氣、漏水、漏油現象;試驗箱與振動臺接口處不漏水、周邊不凝霜;設備所有電器元件的質量等級不低于工業級標準;設備滿足連續工作30天,其各項性能指標均能達到技術要求。
三綜合試驗箱主要組成
箱體(含振動臺接口)、電動軌道(含振動臺接口)、制冷系統、加熱系統、加濕系統、除濕系統、電氣控制系統、防凝露裝置等,以及在本技術規格中未提及的、但為確保該系統正常、穩定、長期、安全、可靠運行所必須的其它配套設施。
三綜合試驗箱主要技術參數
型號:R-ZTH系列
箱體尺寸及工作尺寸:按需定制
溫度范圍:-50℃~+130℃
溫度波動度:≤士0.5℃
溫度均勻度:≤士2℃
溫度偏差:≤士2℃
升溫速率:-50℃到130℃,≤60min (100Kg鋁錠,全程平均值)
降溫速率:20C到-50℃,≤80min (100Kg 鋁錠,全程平均值)
濕度偏差:≤士3%RH (>75%RH) ;≤土5%RH (≤75%RH)
濕度波動度:≤士2%RH
三綜合試驗箱滿足標準:
GB10586- 2006濕熱試驗箱技術條件;
GB10592- -2008高、低溫試驗箱技術條件;
GB/T 2423. 1-2008電工電子產品基本環境試驗規程試驗A:低溫試驗方法;
GB/T 2423. 2- -2008電工電子產品基本環境試驗規程試驗B:高溫試驗方法;
GB/T2423.3-2006電工電子產品基本環境試驗規程試驗Cab:恒定濕熱試驗方法;
GB/T 2423. 4-2008電工電子產品環境試驗第2部分:試驗Db:交 變濕熱;
GB/T5170. 1-2008電工電子產業環境試驗設備檢驗方法總則;
GB/T5170.2-2008電工電子產業環境試驗設備檢驗方法溫度試驗設備;
GB/T5170. 5- 2008電工電子產業環境試驗設備檢驗方法濕度試驗設備;
GB/T5170.18- -2005電工電子產業環境試驗設備檢驗方法溫度/濕度組合循環試驗設備;
三綜合試驗箱驗收方法及依據
GB/T5170. 19 -2005電工電子產業環境試驗設備檢驗方法溫度/振動(正弦)綜合試驗設備;
JJF1270-2010溫度、濕度、振動綜合環境試驗系統校準規范;
JJF1101-2003環境試驗設備溫度、濕度校準規范。
輻射、污染、電磁:符合相關標準要求
噪音:≤80 dB
總功率:裝機總功率約133 KW
溫、濕度基本工作原理
智能化控制
采用自主研發“智能控制器”,綜合試驗箱環境情況(如溫度)及試驗箱內的試品工況,實現自動開啟或關閉相應工作單元(如壓縮機或電加熱器等),從功能而達到各種溫度的精確控制。
高溫段
中央控制系統根據所采集到的箱內溫度信號進行放大、模/數轉換、非線性校正后與溫度的設定值(目標值)進行比較,得出的偏差信號經PID運算,輸出調節信號自動控制加熱器的輸出功率大小,使試驗室內的加熱和熱散失達到一種動態平衡,最終達到恒溫目的。
低溫段
本設備采用先進的單級自復疊制冷技術,單臺壓縮機即可達到-70℃的低溫。精餾型混合工質自復疊制冷技術采用單臺普通商用壓縮機,以多元混合工質作為制冷劑,實現最低-120℃的低溫制冷,達到了傳統復疊式采用三臺壓縮機的三級復疊制冷的效果。極大地簡化了制冷系統的結構,降低了初投資成本,減小系統運行能耗,提高系統可靠性。制冷系統采用精餾的方法巧妙的完成了潤滑油與混合工質的高效分離,保證系統在低溫段不出現油堵問題。結構簡單、運行穩定、能效高、便于小型化。
濕度
除濕:采用冷凝法進行除濕;
加濕:采用蒸汽加濕法加濕。
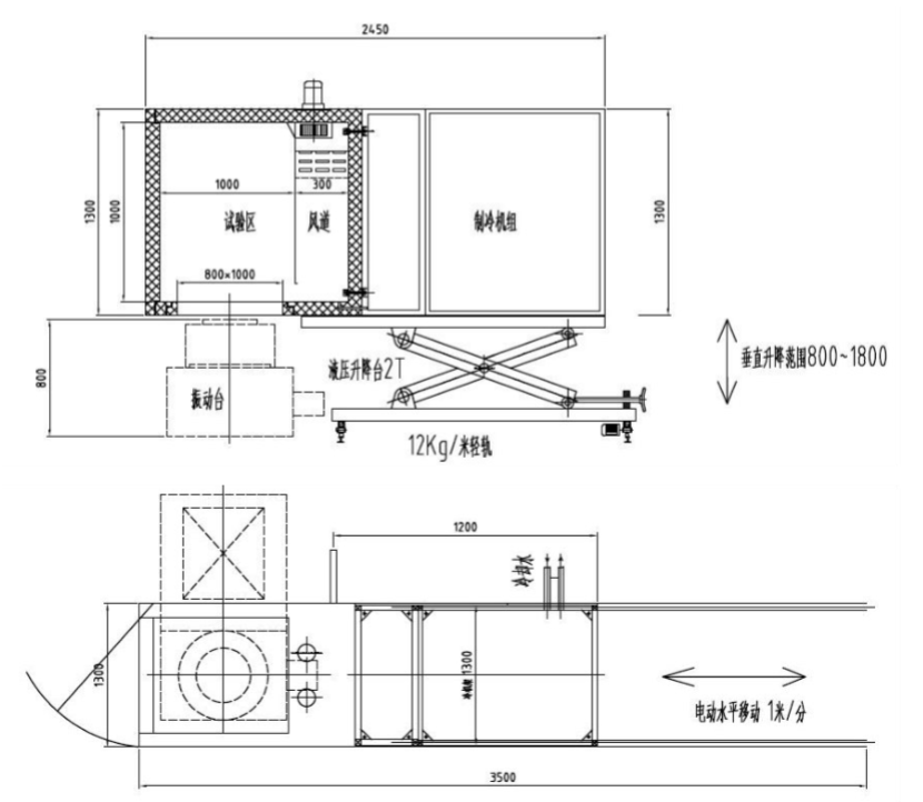
三綜合試驗箱箱體結構
采用升降臺方式:前部工作室內壁連續焊接成密封,工作室底部為活動底板,配盲板及、水平振動接口板及垂直振動接口板各1塊。振動接口板通過硅橡膠軟膜與振動臺軟連接,可隔離振動,并具有密封和隔熱功能;工作室內設有送風系統:送風電機、離心扇葉、加熱器、加濕器、制冷及除濕蒸發器。后部為制冷機組系統和電器控制系統。以下為1立方三綜合試驗箱示意圖。











客服微信